Galvanize Steel Frame Container Kay
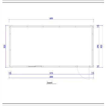
Longè: 6058mm / 6000mm oswa Customized
Lajè: 2438mm / 3000mm oswa Customized
Wotè: 2600mm / 2791mm / 3000mm oswa Customized
Klè wotè andedan kay la: 5800mm * 2200mm * 2300mm, li se chanjan
Pwodwi Entwodiksyon
Pi bon kay veso asye galvanize ki soti nan Lachin: | ||
Gwosè | Longè | 6058mm / 6000mm oswa Customized |
Lajè | 2438mm / 3000mm oswa Customized | |
Wotè | 2600mm / 2791mm / 3000mm oswa Customized | |
Klè wotè andedan kay la | 5800mm * 2200mm * 2300mm, li se chanjan | |
Akseswar estanda | Sistèm Do-Kay | Estrikti tèt (2.5 ~ 3mm epesè) plis 70mm epè izolasyon kim PU entegre plis sistèm elektrik entegre |
Sistèm chasi | estrikti asye chasi (2.5 ~ 3mm epesè) plis 18mm epesè siman-fib tablo plis 2mm epesè PVC fèy etaj (izolasyon vè lenn mouton pou opsyonèl) | |
| Permitted loading:>2.5KN/m2 | ||
Sistèm miray la | 50/75/100mm EPS panèl sandwich, panèl sandwich lenn wòch, panèl sandwich fib vè, oswa panèl sandwich PU | |
Sistèm Pòt | Pòt asye / Pòt dife-prèv / pòt panèl Sandwich | |
Sistèm fenèt | Fenèt panno alyaj aliminyòm ak fenèt plastik-asye a, sèl oswa doub vè | |
Sistèm etaj | PVC, plywood oswa Customized | |
Opsyon | Sistèm drenaj | Full entegre nan faktori, ka Customized dapre desen kliyan an |
Sistèm elektrik | Full entegre nan faktori, ka Customized dapre desen kliyan an | |
Paramèt teknik | Tanperati rezistan | -40ºC a 40ºC |
Rezistans van | 210km/h | |
Rezistans tranbleman tè | Klas 8yèm | |

Avantaj
Entegre do-kay kimen PU, 100 pousan prèv dlo ak pi bon izolasyon;
Sistèm elektrik ak plonbri entegre;
Pòt ak fenèt prefabrike;
8 èdtan rasanble tan pou yon sèl inite
SOC anbalaj, yon inite pou chak pake;
Avèk sistèm goutyè ak tiyo, kapab tou ajoute siplemantè LGS do-kay;
Avèk kalkil estrikti
Seri konplè konsepsyon konsèp ak enstriksyon enstalasyon
Ka bati nan twa etaj
Konbinezon gratis pou reyalize kondisyon espas ou yo
Opsyon koulè diferan
Pri konpetitif
Èske yo ka deplase oswa demonte ak reasanble
Ka ak twalèt
Nou gen tou dilatabl kay veso pou pwojè lojman pri ki ba
Nou gen kay veso detachable pou pwojè kan pri ki ba
Nou gen estrikti asye pou pwojè depo / atelye
Aplikasyon
Biwo sit konstriksyon oswa kan aranjman;
Biwo sit min oswa kan aranjman;
Chanm izolasyon;
lopital COVID;
Biwo tanporè oswa kay k ap viv
Kay pri ki ba;
Granmè lakou plat;
izolwa kyòs;
Gad kay;
Lwe pou lòt itilizasyon tanporè.

Pwojè ki gen rapò
Endonezi:
PT Merdeka akomodasyon kan-288 Galvanize Steel Frame Container Kays with suite;
AMMAN akomodasyon kan-480 chanm ak twalèt;
Chili:
FRIOSAN depo frèt - depo 1600sqm ak zòn biwo de etaj, manje ki depann de ak chanm aksè.
Rediksyon kay la
Casa Laguna Verde -156sqm de etaj kay
Ostralyen:
Atelye Polyfit ak bilding biwo-an total alantou 2000sqm, konbine estrikti asye, limyè kalib asye ankadreman ak resipyan anbake dezyèm men;
Filipin:
Atelye SCPA -3200sqm ak biwo Iso Standard 20FT Flat Pack Container House andedan
SG Eco atelye-3600sqm depo ak biwo de etaj nan 250sqm,
Iriga faktori,
BBL Camp—24 chanm aranjman kan ak sèvis piblik tankou sal manje, sal jimnastik;
Maria De Sio Resort-320sqm
SMMCI Camp — bilding biwo 1300sqm ki te konstwi pa kay veso flatpack ak depo 2600sqm

PNG:
PNG Devlopman konkrè—13 estrikti asye depo nan alantou 1500sqm chak;
Vyèj Island: 10000sqm sant distribisyon
Nouvo Caledonia:
Alain nan depo-senk etaj bilding depo ak asansè kago, nan total 1750sqm
Le Tigre Warehouse-twa etaj depo ak ranp, total 3700sqm
Mozanbik:
Nakala Resort—32 inite nan kay asye kalib limyè kòm yon resort bò plaj;
Tonga: Tonga Power Plant—3600sqm
Reunion Island: ARC-18/19 House Project—240sqm

FAQ
K: Èske w se yon faktori oswa yon konpayi komès?
A: Hangzhou Xixi Building co, LTD. se yon faktori ki sitiye nan Xiaoshan District, Hangzhou, Lachin.
K: Ki kapasite rezèv ou a?
A: Detay kapasite pwodiksyon anyèl yo jan sa a:
Kay veso: 7200sets
Kay prefabrike; 564000 mèt kare
Steel estrikti: 360000 mèt kare.
K: Ki jan yo enstale PU izole Kay Container Expandable?
A: Nou pral bay enstriksyon detaye ansanm ak videyo enstalasyon yo. Ekip enjenyè enstalasyon pwofesyonèl yo disponib tou pou kèk pwojè espesyal lòt bò dlo nan pri kliyan an si li nesesè.
K: Konbyen tan se tan livrezon ou a pou kay veso asye galvanize?
A: Pral nòmalman 30 jou dapre diferan kantite lòd ak demann. Sa a te enkli gratis desen achitekti, desen magazen, enstriksyon enstalasyon.
K: Ki jan ou garanti bon jan kalite a nan pwodwi yo?
A: Kalite se tan kap vini an. Kalite se pi gwo priyorite.
Nou gen yon ekip QC senk moun ki enspekte pwodiksyon chak jou, yo pral swiv desen boutik yo entèdi epi tcheke chak pati / pwojè nan kòmansman an, nan mitan an ak pou pwodwi fini.
Nou kapab tou rasanble kèk inite nan faktori nou pou kèk pwojè espesyal personnalisé pou asire w tout bagay bon ase.

K: Kouman mwen ka jwenn yon sitasyon pou pwojè mwen an?
A: Nou ka ofri sitasyon detaye dapre desen ou an. Si ou pa gen desen, designer nou an ka ofri ou kèk desen ki baze sou kondisyon detaye ou yo. Sityasyon yo pral bay apre konfimasyon an nan desen yo.
Ou ka renmen tou
Voye rechèch










